Griechenland Immobilien

Griechenland

Immobilien

Appartements

Ferienhäuser

Ferienimmobilien
 
Immobilien
Häuser und
Apartments
in Nikiti
Häuser
bei Sani
Apartments
in Paliouri
Chalkidiki
Urlaub
Fotos
Häuser
Fotos
Chalkidiki
Kontakt
 
Greece UK Germany France Netherlands Sweden
Sani
Ferienimmobilien Sani
Ferienimmobilien
Ferienimmobilien
Chalkidiki /Kassandra / Sani
Ferienimmobilien:
Freistehende Einzelhäuser
Freistehende Villen

Das Sani-Resort befindet sich an einem der schönsten Orte auf der Kassandra.

Umsäumt von Pinienwälder, weit auslaufenden Sandstränden, hügeligen Weizen- und Olivenfeldern und dazu noch gratis den grandiosen Blick auf den Berg Olymp.

Für Sportbegeisterte bieten die nahe gelegenen Strände alle Möglichkeiten: Tauchschule, Windsurfen, Wasserski, Tennis, Kanu, Parasailing, Wandertouren und und und.....

In diesem Gebiet entstehen freistehende Häuser mit jeweils
1000 m² eigenem Grund.
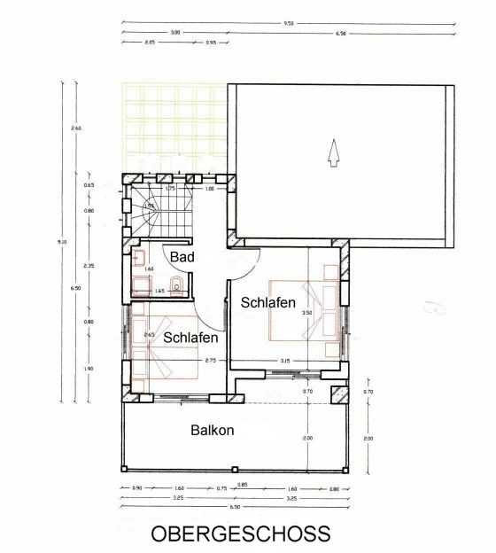
Jedes Haus besteht aus ca. 100 m² , aufgeteilt in:

 

Erdgeschoß: Obergeschoß:
  • Wohnzimmer
  • Küche
  • Gästezimmer mit Gästebad
  • Terrasse
 
  • 2 Schlafzimmer
  • Badezimmer
  • Balkon
 
  Alle Häuser haben Natursteinfassade, teilweise Naturholzdecken, offenen Kamin, Anschlüsse für Zentralheizung, Parkplatz
und einen eigenen Grund von ca. 1000 m².
 
Ferienimmobilien Ferienimmobilien Umgebung
Plan Erdgeschoss Plan Obergeschoss    
Erdgrschoss Obergeschoss
design by