Griechenland Immobilien

Ακίνητα

Διαμερίσματα

Παραθεριστικές

κατοικίες

 

Ferienimmobilien
 
Ακινιτα
Ακινιτα Νικήτη
Ακινιτα Σάνη
Ακινιτα Παλιούρι
Η Χαλκιδικη
Διακοπες
Φωτογραφιες Ακινιτα
Φωτογραφιες Χαλκιδικη
Επικοινονία
 
Greece UK Germany France Netherlands Sweden
 
Ανεξάρτητες κατοικίες στη
ΣΑΝΗ - Κασσάνδρας

Η περιοχή SANI  βρίσκεται σε ένα από τα ομορφότερα σημεία της Κασσάνδρας με μια μεγευτική θέα στον Όλυμπο. 

Γεμάτο από πανύψηλα πεύκα, ατέλειωτες παραλίες, μία από τις πιο πολυτελείς μαρίνες,  τόσο και οι πολυτελείς εγκαταστάσεις του διπλανού SANI-Resort, το τοπίο ειναι ιδανικό για όλες τις μορφές διαμονές.

Σπορ και εναλλακτικές μορφές τουρισμού όπως πεζοπορία στα πανέμορφα δάση, Wind-Surfing , ιππασία, ποδηλασία κτλ.  κάνουν τη περιοχή περιζήτητη.

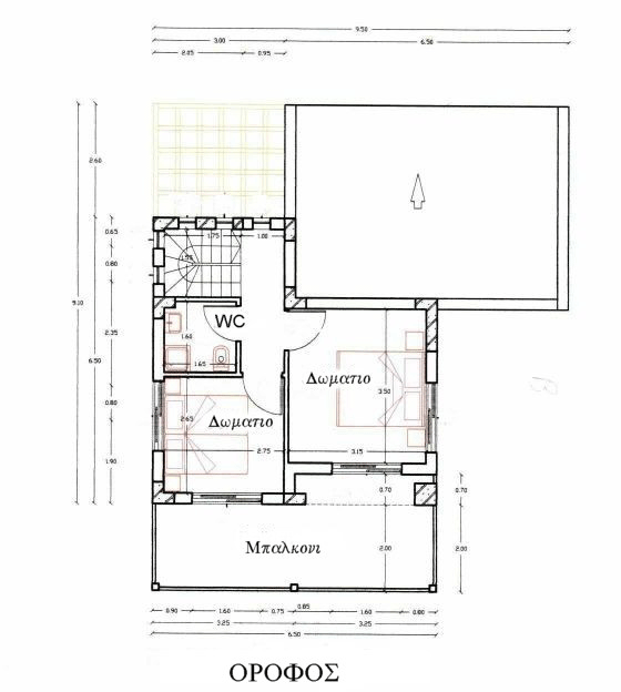
Εδώ βρίσκονται ανεξάρτητες δυόροφες βίλλες των 100 τ.μ. με ιδιοτικό οικόπεδο  1000 τ.μ. οι οποίες αποτελούνται από :

Ισόγειο : Σαλόνι, τραπεζαρία, κουζίνα, ξενώνα με μπάνιο

Οροφος : υπνοδωμάτια και μπάνιο μεγάλο μπάλκονι

Τα ισόγεια εξοτερικά είναι επενδυμένα με φυσική πέτρα Λακκώματος. Ξύλινα ταβάνια, τζάκι, εγκατάσταση για θέρμανση, πάρκιγκ και 4000 τ.μ. επιπλέον κοινόχρηστος χώρος είναι μερικά από τα χαρακτιριστικά του συγκροτήματος.

   
 
       
design by