Griekenland  Onroerend goed

Griekenland

Onroerend goed

Appartementen

Huizen

Griekenland  Onroerend goed
 
Onroerend
goed
Huizen en Appartementen Nikiti
Huizen
Sani
Appartementen Paliouri
Halkidiki
Vakantie
Fotos
Huizen
Fotos
Halkidiki
Contakt
 
Greece UK Germany France Netherlands Sweden
Sani
Sani
Sani
Sani
Vrijstaande huizen in Sani
Halkidiki - Kassandra

Het Sani-Resort bevindt zich op een van mooiste locaties op Kassandra.

Omringt door pijnboombossen, uitgestrekte zandstranden, heuvelachtige tarwe- en olijfboomvelden en bovendien nog een grandioos uitzicht op de berg Olymp.

De nabijgelegen stranden bieden voor sportliefhebbers allerlei mogelijkheden: duikscholen, windsurfen, tennis, kanoën, parasailing, wandeltochten en nog veel meer .....

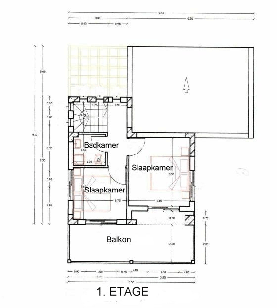
In dit gebied worden vrijstaande huizen gebouwd met elk 1000 m² eigen grond. Elk huis beschikt over ca. 100 m² , verdeeld in:

Parterre: 1.etage:
  • woonkamer
  • keuken
  • gastenkamer met badkamer
  • Terrasse
  • 2 slaapkamers
  • badkamer
  • Balkon
 
     
Alle huizen hebben een natuursteengevel, open haard, aansluitingen voor centrale verwarming, parkeerplaats en eigen grond van ca. 1000 m².
Sani Sani landscape
   
Sani Sani
design by