Grekland Lägenhetter

Grekland

Lägenhetter

Egendomen

Husen

Grekland Lägenhetter
 
Lägenheter
Husen och Egendomen Nikiti
Husen
Sani
Egendomen Paliouri
Halkidiki
Anläggningar
Fotografi
Husen
Fotografi
Halkidiki
Contakt
 
Greece UK Germany France Netherlands Sweden
Sani
Ferienimmobilien Sani
Ferienimmobilien
Ferienimmobilien
Fristående enfamiljsvillor
i Sani - Kassandra

Semesterorten Sani är beläget vid en av det vackraste platserna på ön Kassandra.

Omgiven av pinjeskogar, med vidsträckta sandstränder, kuperat landskap med böljande veteåkrar och olivlundar inklusive den vidunderliga utsikten över berget Olympos som är gratis.

För sportentusiaster erbjuder de närbelägna stränderna alla möjligheter: Dykskola, vindsurfing, vattenskidåkning, tennis, kanot, parasailing, vandringsturer och mycket mycket mera.....

På detta område byggs fristående villor med egna tomter på 1000 m² .
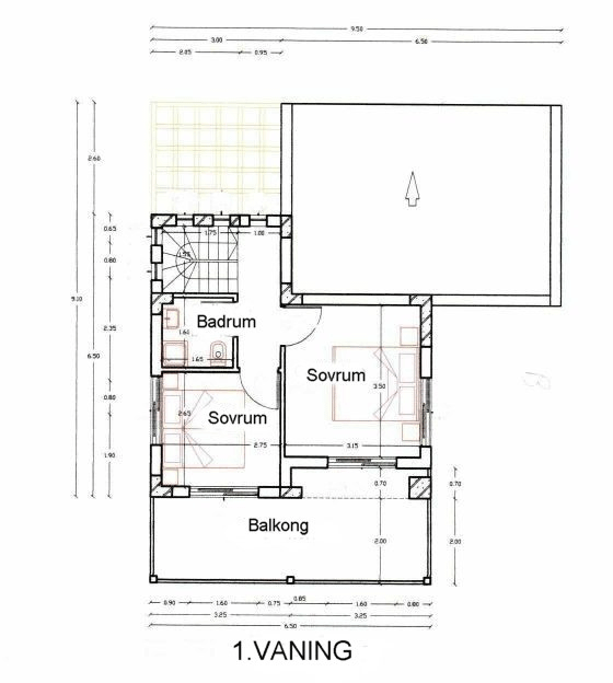
Varje villa omfattar ca 100 m² , fördelat på:

 

Entréplan: Övervåning:
  • Vardagsrum
  • kök
  • gästrum med gästebadrum
  • Terrasse
 
  • 2 sovrum
  • badrum
  • Balkon
 
  Samtliga hus har en fasad i natursten, innertak delvis utförda i naturträ, öppen spis, anslutning för centralvärme,
parkeringsplats och egen tomt på ca. 1000 m².
 
Ferienimmobilien Ferienimmobilien Umgebung
Bottenvaning Övervåning:    
Bottenvaning Vaning
design by